艺术涂料×56㎡顶层公寓:独居青年的不二之选
标签:艺术涂料风格运用
纷繁的都市
善于生活的人明白
舒适与合适才是真理
简约而不简单
遂心而筑
公寓小户型——小
却足够温暖
窗明几净的空间
可再看到一方的绿意
顿觉放松,重归宁静

在浮躁的现代生活,简约主义成为一种全新的姿态。设计师应居者的要求,将多余的墙体移除,厨房和卫生间隐藏在木饰面围合的空间中,打造极简的休憩空间结构。为赋予居所通透明朗之感,设计师甄选浅灰色意大利进口艺术涂料通涂墙面,搭配爱马仕橙色木饰面,点缀以黄铜线管和简约圆形壁灯。即使是极简的风格设计,其中的精致品位仍然随处可见。

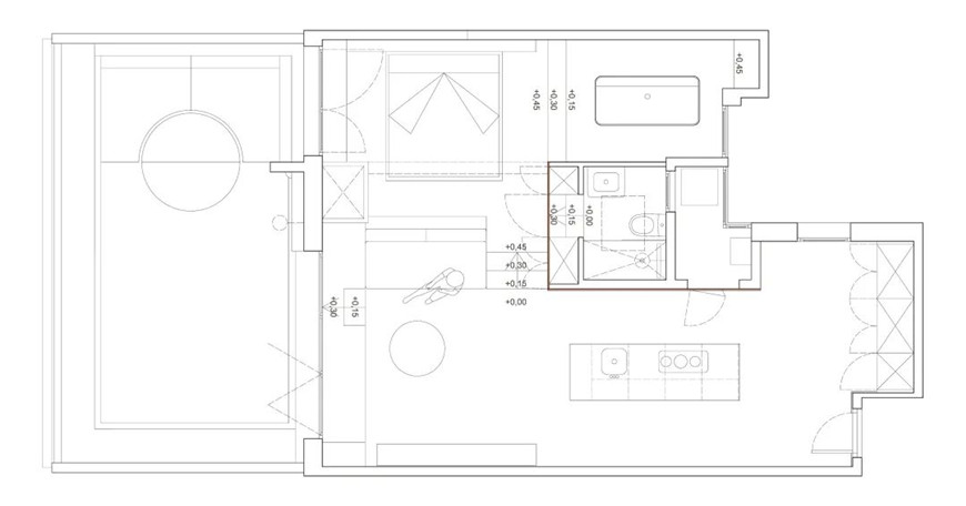
空间平面图▲
项目空间信息
空间名称:56平米小户型顶层公寓
空间类型:住宅空间、小户型公寓、住宅改造、顶层公寓
空间地址:西班牙 巴塞罗那
设计公司:Cometa Architects
空间面积:56平方米
空间主材:艺术涂料、混凝土自流平、木饰面、细铜管、六角形瓷砖
空间摄影:JoséHevia
【空间掠影】

顶层公寓被描述为一个正式“内向”的空间,此间由当地的Cometa Architects工作室依据小型海军建筑灵感改造而成。设计师从不必要的设计中释放尽可能多的空间,令这层56㎡小户型顶层公寓以纯粹极简的形式存在。

入门即见玄关的简约端景,想象着晚间黄铜圆形壁灯散发温暖的光,那是独属于归家人的灯塔和仪式感。顶天立地的纯白色转角柜,轻描淡写地过渡空间的同时,仿佛能装下过去、现在和将来的一切行李。一旁墙上的浅灰色意大利进口艺术涂料,悄悄地,延展了整个空间。

设计师以爱马仕橙色调的木饰面围合一方空间,容纳厕所,洗衣房储物柜等实用区域,隐藏在木饰面墙的门扇将繁琐的物什关在狭小的“船舱”,留出大片自由和纯净的空间给予居者诗意生活。

以纯白色岩板构造的岛台与浅灰色艺术涂料形成自然柔和的美感延续,将简约和品质之感相融合,赋予空间清爽雅致之感。体块错落有致,表达设计感的同时,无形中消弭了小空间的拥堵。岛台隐形的柜体收纳,呈现出恰到好处的完美。

半围合式半墙取代了客厅和卧室之间的墙面,整个空间通透开阔。落地窗的设计,不仅为居所引入了充足的自然光,同时将屋顶露台的自然景致框进室内,绿植的清新之感令人神清气爽。

素雅的床品,与浅灰色的艺术涂料搭配可谓天作之合。在纯净的色调中,融入几抹亮色作为点缀,平添空间的层次美感。浴室处的壁灯设计与卫浴产品相得益彰,将独居生活的惬意展现得淋漓尽致。

浅灰调的极简空间,正是居者纯粹心境的映照。艺术涂料、黄铜、木材在此间营造出一种微妙而浪漫的宁静。这里,除了能放下生活的琐碎,还能放下很多心事。






