【艺术涂料设计案例】工业风×美式风格=?
标签:
这是一个比较特别的设计案例。设计师与业主一家的沟通后,了解到居室主人对于时下流行的设计风格有着独到的见解,希望量身打造一个专属的私宅。既时尚简约又复古优雅,经过沟通,最终将工业风与美式风格混搭,形成了别具一格的空间体验。硬装选材上,设计师选用意大利水泥灰艺术涂料装饰墙面和天花板,赋予空间素雅而质朴的气质,而地面采用复古的人字铺木地板搭配,软装以复古的美式家具为主,材质和用色讲究,呈现出一种别样的美学生活品位。


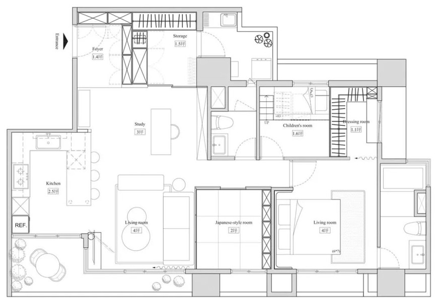
平面布局图▲
项目空间信息
? 空间名称:Bright House公寓
? 空间类型:住宅空间、平层住宅、混搭风格
? 空间地址:中国台湾高雄市
? 设计公司:HAO Design好室设计
? 空间面积:110平方米
? 空间主材:水泥灰艺术涂料、木地板、大理石、红砖等
? 空间摄影:Hey!Cheese
【空间掠影】


步入玄关,墙面涂绘意大利水泥灰进口艺术涂料,高级灰的色调通过复古的水泥肌理呈现迷人的质感,不加修饰的线管延伸在天花板中,雅致洒脱的工业风气质弥漫整个空间。与复古的原木软装形成鲜明的对比,同时又自然而和谐,构成入门后第一道迷人的端景。

质感细腻的水泥灰艺术涂料墙面为多元的风格展现提供了一个极具高级感的场景,无论是精致的灯饰、浪漫的艺术画、哑光面玫瑰金色储物柜还是黑色皮革玄关椅,在艺术涂料墙面的衬托下,散发着浓郁的艺术气息。

厨房采用开放式布局,与客厅和阳台形成自然的过渡,宽阔的中岛设计让女主人拥有来去自如的料理空间,又能在备餐时关注孩子的动向,兼具生活实用性和设计感。


客厅中明朗通透的大面积落地窗,使温煦光感散透在质朴的木地板上,原木错落有致的线条走向极具美感,与窗外的绿植相映成趣。



意大利水泥灰艺术涂料表达着工业风的率性和潇洒,同时巧妙地通过木地板、ROCHE BOBOIS皮革沙发与Sigurd Ressell的海鸥椅呼应美式风格的复古韵味。


卧室整体风格以复古蓝作为风格的延续。蓝色绒面质感搭配水泥灰墙面,极简而韵味十足。

听说,高级的设计都用艺术涂料,这样的空间,正是最好的证明。如果你也喜欢,大可以尝试一番哦~






